关于东莞市长安镇2025年度第七批次城镇建设用地社会稳定风险评估工作公示
关于东莞市长安镇2025年度第七批次城镇建设用地社会稳定风险评估工作公示
根据《广东省发展改革委重大项目社会稳定风险评估暂行办法》(粤发改重点〔2012〕1095号)、《中华人民共和国土地管理法》及《中华人民共和国土地管理法实施条例》等文件,东莞市长安镇人民政府委托第三方评估机构(广东新晖工程管理有限公司)开展东莞市长安镇2025年度第七批次城镇建设用地的社会稳定风险评估工作,现公告如下:
一、项目概况
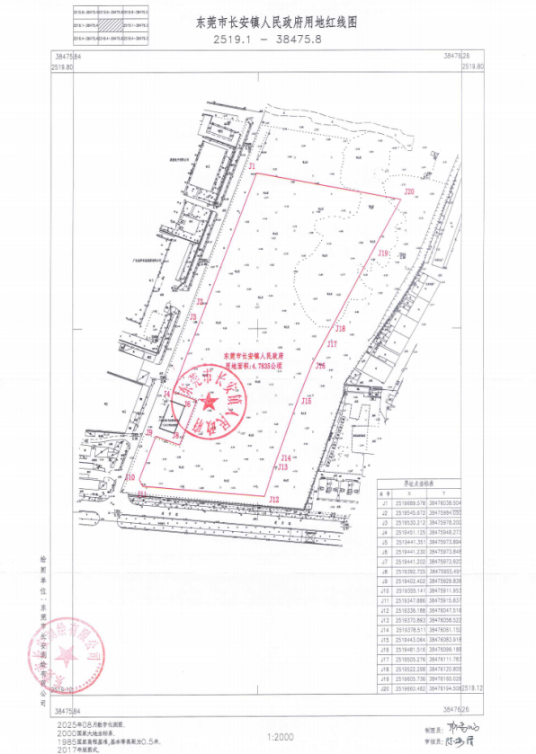
为促进东莞市长安镇产业发展和经济结构的调整,加快土地成片开发,推进城市化建设进程,同时为更好地按东莞市、长安镇总体规划进行合理有效开发使用土地,长安镇人民政府拟征用位于霄边社区建安路北侧的集体土地4.7835公顷(71.7525亩),拟征地块规划为工业建设用地。
二、目的意义
为了保证收集意见和建议的广泛性,同时使得本项目建设的相关利益群体都能够了解本项目的各方面情况。
三、初步设想
随着市场经济体制改革的不断深入,各种利益格局的调整,深层次的社会矛盾进一步显现,有些矛盾纠纷已成为影响社会稳定、制约经济发展的重要因素。近几年发生的多起恶性群体事件更是引起了国家、各地方政府和企业的高度重视。所以从源头化解矛盾纠纷,才是建设和谐社会的基础。
四、项目可能存在的影响社会稳定的风险概述
项目各项用地手续办理的合法合规性,土地开发对周边经济社会环境的影响等因素。
五、预防或减轻社会稳定风险的对策措施要点
建议项目实施主体单位严格按照审批流程,开展相关用地手续办理工作;制定好相关工作章程,对相关工作人员做好培训工作,配备充足的工作人员,做好群众的宣传疏导工作;加强对拟征地块及周边环境的调查和保护,避免因项目开发建设及运营对周边环境造成影响等。
六、征求群众意见建议的反馈渠道、方式及期限
1. 征求群众意见建议的反馈渠道
联系人:龚工 联系电话:13543758080
邮 箱:498099896@qq.com
2. 征求群众意见建议的反馈方式
群众可以通过电子邮件、电话等方式,发表对拟征地块社会稳定风险方面的意见及建议,以及其他相关诉求。
3. 征求群众意见建议的反馈期限可自公示告之日起十个工作日内。
广东新晖工程管理有限公司
2025年8月11日

拟征地块红线范围图
